ALL
RESTAURACIÓN
COMERCIAL
RESIDENCIAL
URBANISMO
CULTURAL
DEPORTIVO
CONCURSOS
CONTACTO
ALL
RESTAURACIÓN
COMERCIAL
RESIDENCIAL
URBANISMO
CULTURAL
DEPORTIVO
CONCURSOS
CONTACTO
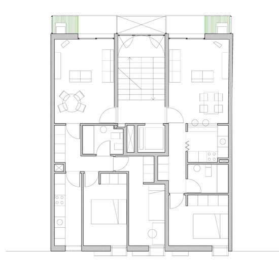
12 Viviendas en Madrid
12 Viviendas en Calle Córdoba, Madrid 2007
↑
Back to Top