ALL
RESTAURACIÓN
COMERCIAL
RESIDENCIAL
URBANISMO
CULTURAL
DEPORTIVO
CONCURSOS
CONTACTO
ALL
RESTAURACIÓN
COMERCIAL
RESIDENCIAL
URBANISMO
CULTURAL
DEPORTIVO
CONCURSOS
CONTACTO
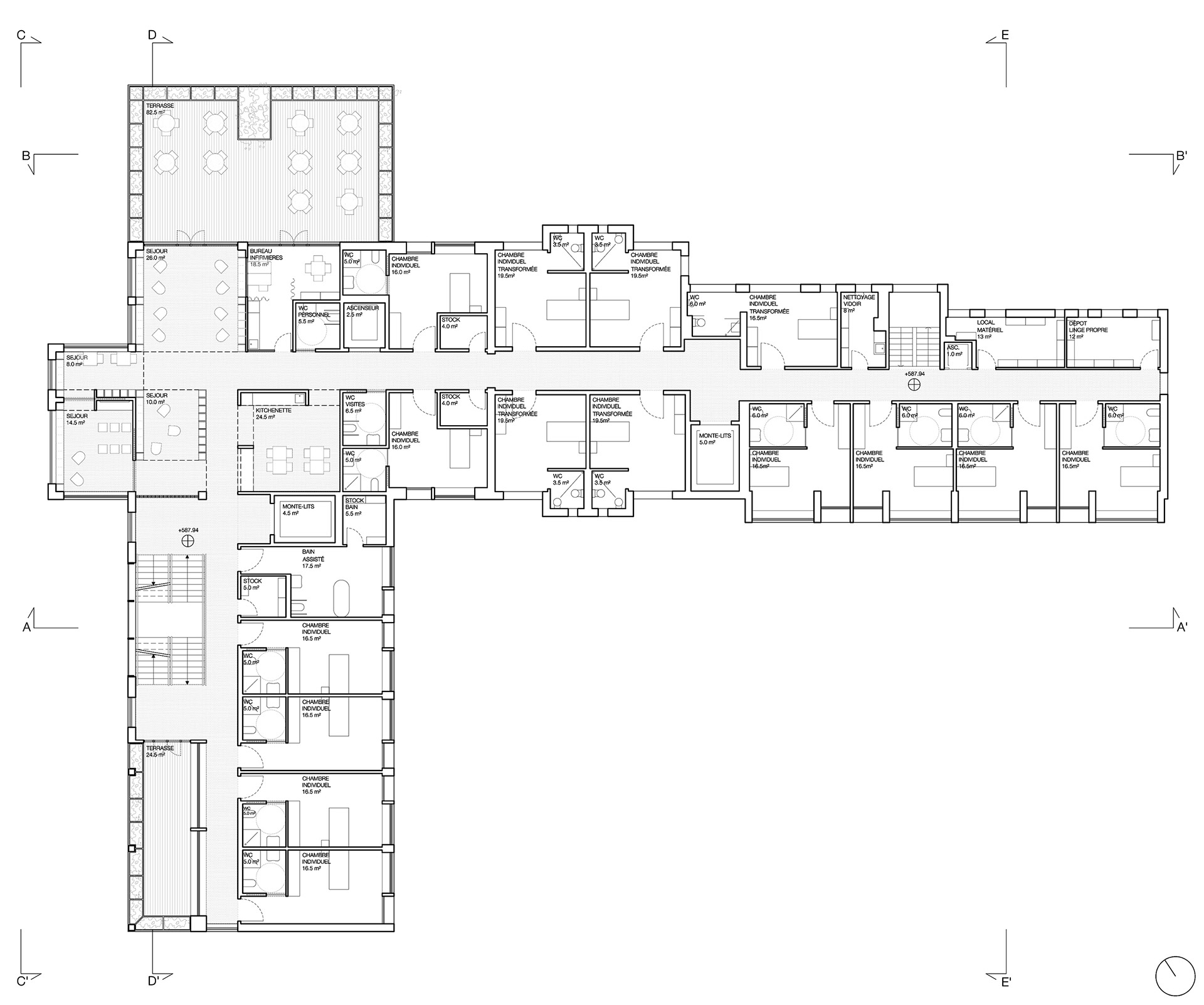
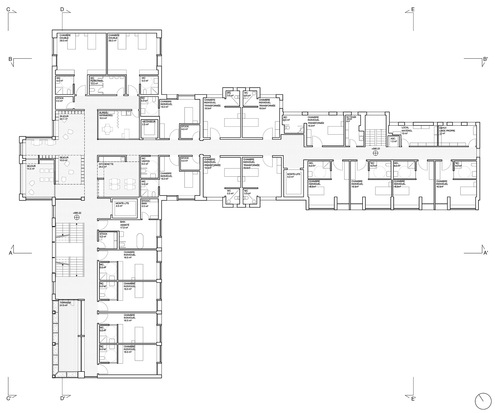
Foyer Pierre-Olivier, Chamoson (Suiza)
↑
Back to Top