ALL
RESTAURACIÓN
COMERCIAL
RESIDENCIAL
URBANISMO
CULTURAL
DEPORTIVO
CONCURSOS
CONTACTO
ALL
RESTAURACIÓN
COMERCIAL
RESIDENCIAL
URBANISMO
CULTURAL
DEPORTIVO
CONCURSOS
CONTACTO
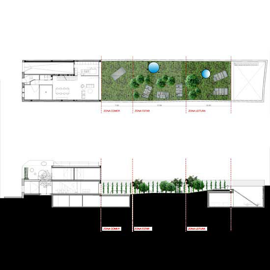
Vivienda Unifamiliar en Matosinhos
Vivienda unifamiliar en Matosinhos, Oporto 2007
↑
Back to Top